4 houses in 2 townhouses
domestic weaving
No items found.

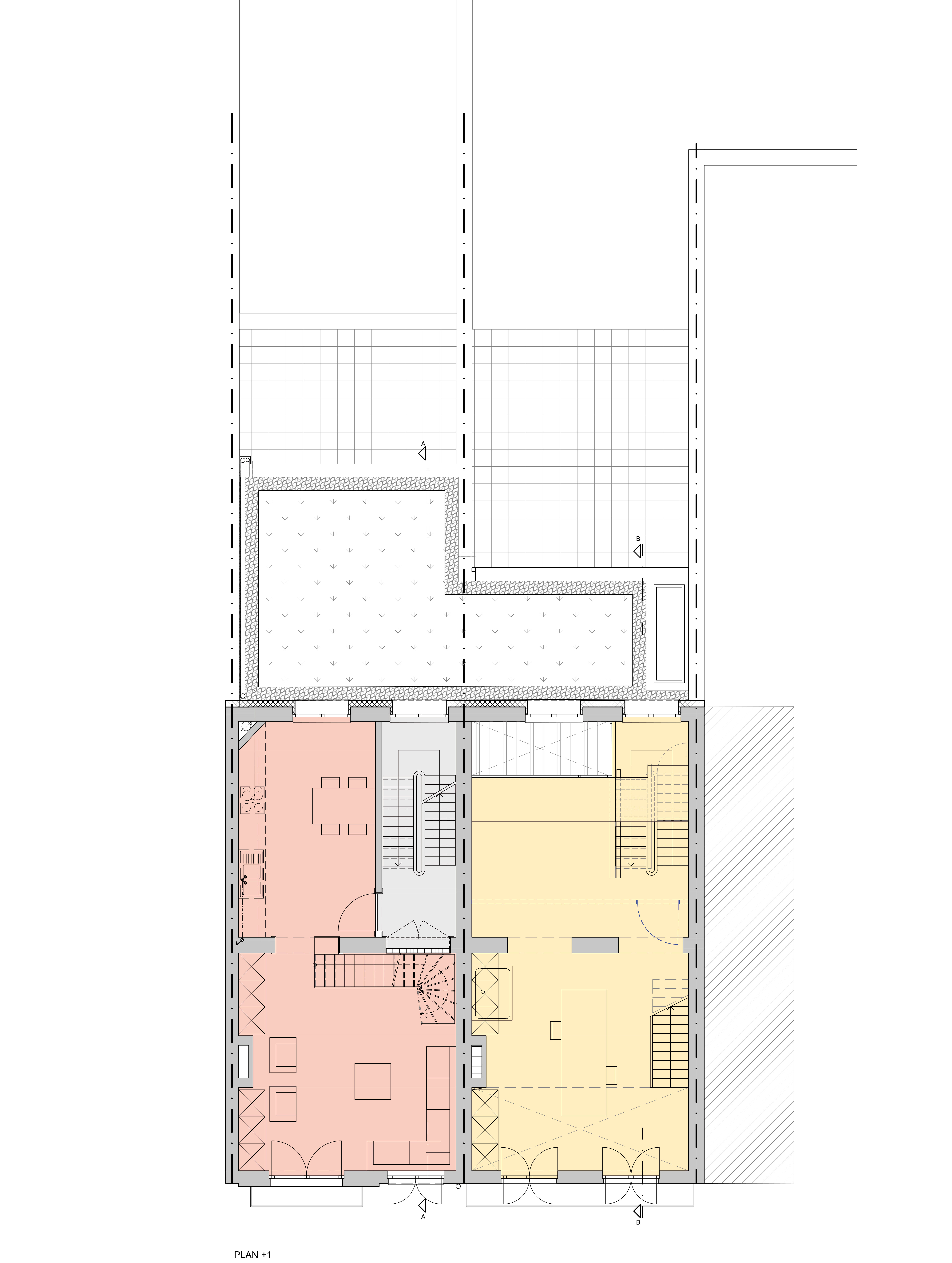
By connecting the ground floors of two Brussels townhouses, the client can remain living in the home for life. One house contains a shared staircase leading to a duplex with two bedrooms. At the top of the buildings, a one-bedroom apartment and a studio are created. A new staircase to the basement provides storage for the dwellings. Valuable interior elements are preserved and materials are reused. Rear façades and roofs are insulated. The ground-floor spaces follow a U-shaped sequence, gradually shifting from a more public to a private character. The entrance, kitchen, and living space are retained and extended with rooms more oriented toward the garden. A void and a rooflight bring daylight into the house in varying ways throughout the day and the seasons, creating a relationship with the first floor.

Door het verbinden van het gelijkvloers van twee Brusselse herenwoningen kan de opdrachtgever levenslang in de woning blijven wonen. Eén woning bevat een gemeenschappelijke trap die een duplex met twee slaapkamers ontsluit.  Bovenaan de woningen komt een éénkamerappartement en een studio. Een nieuwe trap naar de kelder zorgt voor berging voor de woningen. Waardevol interieur blijft behouden en materialen worden hergebruikt. Achtergevels en daken worden geïsoleerd. De ruimtes op het gelijkvloers volgen elkaar U-vormig op en evolueren van een meer publiek karakter naar privaat. De inkom, keuken en woonruimte worden behouden en uitgebreid met meer op de tuin georiënteerde ruimtes. Een vide en een daklicht bezonnen de woning doorheen de dag en het seizoen op een andere manier en brengt relatie met de eerste verdieping.

En reliant les rez-de-chaussée de deux maisons de maître bruxelloises, le maître d’ouvrage peut continuer à habiter le logement toute sa vie. L’une des maisons comprend un escalier commun desservant un duplex de deux chambres. Au sommet des bâtiments prennent place un appartement une chambre et un studio. Un nouvel escalier vers la cave assure des espaces de rangement pour les logements. Les éléments intérieurs de valeur sont conservés et les matériaux réemployés. Les façades arrière et les toitures sont isolées. Les espaces du rez-de-chaussée s’enchaînent en forme de U, évoluant progressivement d’un caractère plus public vers un caractère plus privé. L’entrée, la cuisine et le séjour sont conservés et prolongés par des espaces davantage orientés vers le jardin. Un vide et un lanterneau éclairent la maison différemment selon les moments de la journée et les saisons, et créent une relation avec le premier étage.

Location
Brussels
client
Private
Project team
period
2017-2021
photographer
Tim Van de Velde
Structural Engineer
Lime
area
budget
Technical engineer
landscape design
Acoustical engineer
artist
other
No items found.